Published date: 5 November 2021
Last edited date: 8 November 2021
Closed opportunity - This means that the contract is currently closed. The buying department may be considering suppliers that have already applied, or no suitable offers were made.
Contract summary
Industry
Agricultural, forestry, horticultural, aquacultural and apicultural services - 77000000
Location of contract
CT10 1JX
Value of contract
£25,000
Procurement reference
77314000
Published date
5 November 2021
Closing date
7 January 2022
Closing time
12pm
Contract start date
1 April 2022
Contract end date
31 March 2025
Contract type
Service contract
Procedure type
Open procedure (above threshold)
Any interested supplier may submit a tender in response to an opportunity notice.
This procedure can be used for procurements above the relevant contract value threshold.
Contract is suitable for SMEs?
Yes
Contract is suitable for VCSEs?
No
Description
Broadstairs & St. Peter's Town Council is inviting contractors, companies or sole traders to tender for a three-year contract for the following tasks:
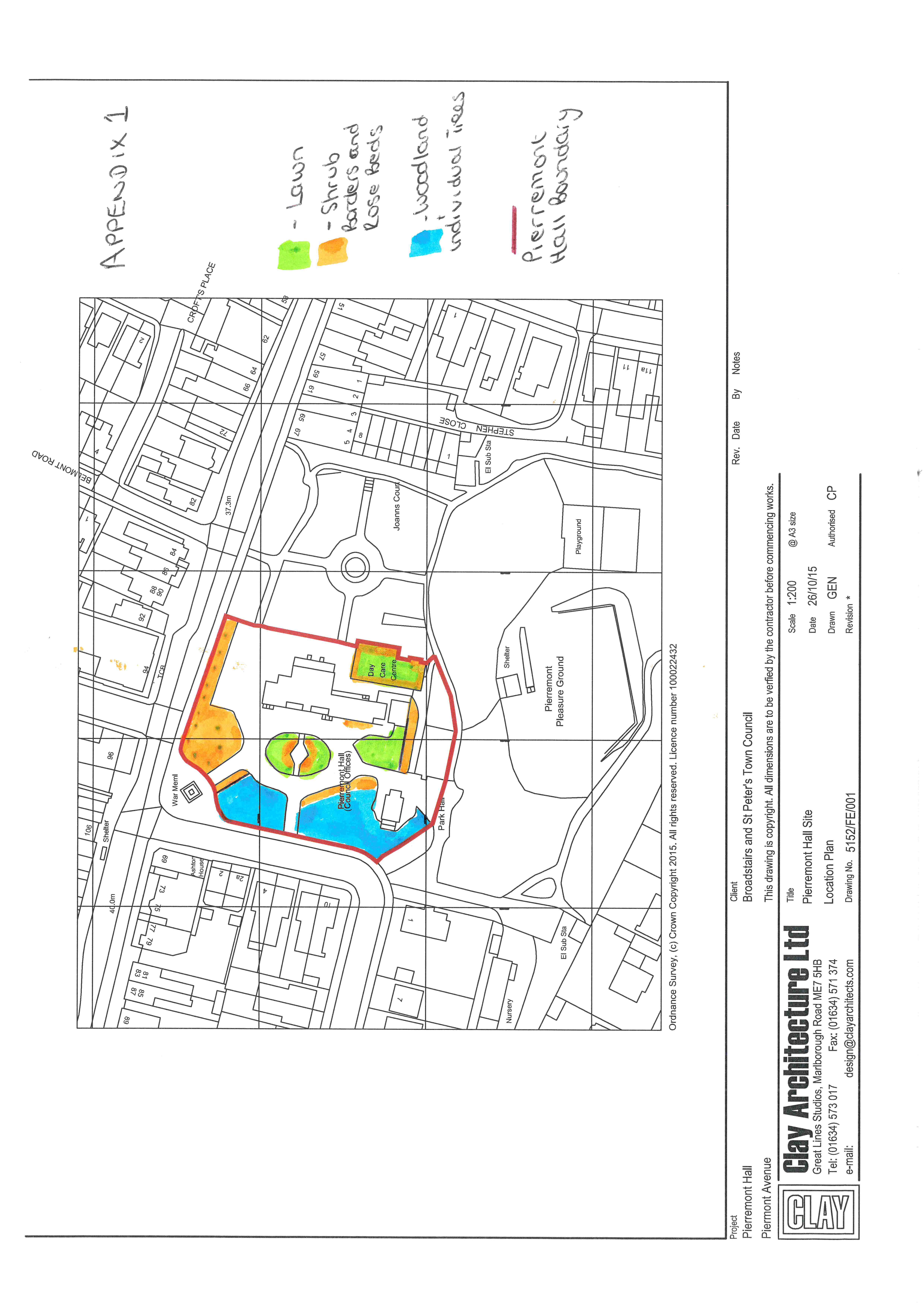
a) Maintenance and gardening of the area of Pierremont Park in the ownership of Broadstairs & St. Peter's Town Council Address: Pierremont Hall, Pierremont Avenue, CT10 1JX (see appendix 1).
b) Grass cutting and maintenance of Culmer's Amenity Land. Address: adj. Vere Road Car Park, CT10 1JF (see appendix 2).
You are invited to bid on both contracts or individually as you prefer.
More information
Attachments
-
- Tender Grounds Maintenance.docx
- Tender notice
-
- Pierremont Hall Appendix 1.jpg
- Bidding documents
- Plan of Pierremont Hall site
-
- Culmers Amenity Land Appendix 2.jpg
- Bidding documents
- Plan of Culmers Amenity Land site
-
- Contract Advert 2022.docx
- Bidding documents
- Advert
About the buyer
Contact name
Christine Chappell
Address
Pierremont Hall, Pierremont Avenue
BROADSTAIRS
CT101JX
England
Telephone
01843 868718
Website
Share this notice
Closing: 7 January 2022, 12pm
All content is available under the
